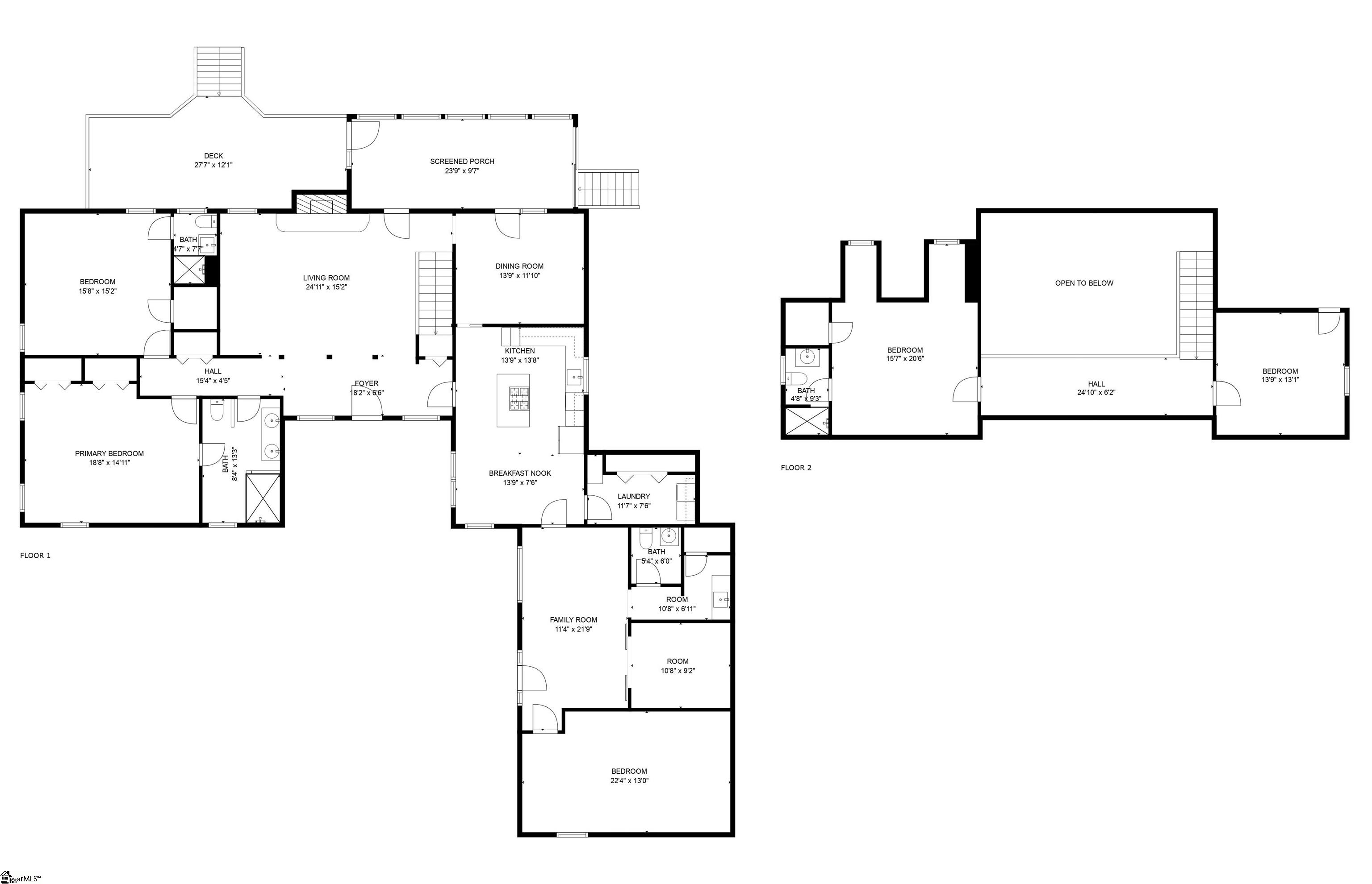
Welcome to 203 Roper Mountain Road Extension, a rare opportunity to own a property that truly does it all. Tucked inside of Greenville’s vibrant East Side, this home blends residential comfort with commercial potential which is ideal for anyone looking to live and work in one convenient, high-visibility location. Offering more than 3,500 square feet of space, most of it on the main level, this home features 4 bedrooms (plus a potential 5th), 3.5 bathrooms, and multiple living areas designed for flexibility. Whether you need space for a multi-generational family, home-based business, creative studio, salon, or private practice, this layout delivers endless possibilities. Highlights include a dedicated office, wood-burning fireplace, and a bright sunroom that opens to a fenced backyard, perfect for relaxing or entertaining after hours. Extensive updates in 2021 make this home move-in ready, including a new architectural roof, fully renovated primary bath, and an upgraded kitchen with granite countertops, solid wood soft-close cabinetry, and stainless steel appliances. The home also features new flooring and paint throughout and a new water supply line from the street (2020), offering peace of mind. Previously used as a salon and long operated as a live/work setup, the property is ADA-friendly and zoned R-20, with the potential for commercial rezoning (buyer to verify suitability). With no HOA and lower county taxes, it’s a smart investment for both personal and professional goals. Conveniently situated between Pelham Road and Roper Mountain Road, you’re just half a mile from I-385 and minutes to Downtown Greenville, the Patewood Medical Campus, Costco, and Roper Mountain Science Center. Whether you’re seeking a spacious home with room for a business, or a strategic property with visibility and flexibility, 203 Roper Mountain Road Extension offers an exceptional blend of location, lifestyle, and opportunity. The seller welcomes all purchase proposals — don’t miss this chance to make it yours.
Property Details
Price:
$518,319
MLS #:
1558703
Status:
Active
Beds:
5
Baths:
3.5
Type:
Single Family
Neighborhood:
022
Listed Date:
May 28, 2025
Finished Sq Ft:
3,599
Lot Size:
16,117 sqft / 0.37 acres (approx)
See this Listing
Schools
Elementary School:
Pelham Road
Middle School:
Beck
High School:
J. L. Mann
Interior
Exterior
Financial
Map
Community
- Address203 Roper Mountain Rd Extension Greenville SC
- CityGreenville
- CountyGreenville
- Zip Code29615
Subdivisions in Greenville
- 100 East
- 1200 Pelham
- 623 North Main
- Abney Mills
- Adams Glen
- Alston Chase
- Alston Park
- Alta Vista
- Annacey Park
- Annandale Estates
- Antioch Springs
- Arden Woods
- Arden Woods Townhomes
- Ashby Park
- Ashford
- Ashmore Springs
- August Brook
- Augusta Acres
- Augusta Heights
- Augusta Ranches
- Augusta Road
- Augusta Road Hills
- Augusta Row
- Augusta Walk
- Avalon Reserve
- Barbrey Heights
- Bear Grass
- Beaumont
- Belhaven Parc
- Belhaven Village Townes at Holli
- Belle Meade
- Bellevue
- Bellewood Forest
- Bells Grant
- Berea Forest
- Berea Heights
- Biltmore Walk
- Birch River
- Bohemian Cottages
- Botany Woods
- Bradford Place
- Braemor
- Brandon
- Briarcreek
- Bridgeport Commons
- Bridgeport Place
- BroadView Greenville
- Brook Ridge Hills
- Brookfield East
- Brookfield West
- Brookside Forest
- Buxton
- Camden Cottages
- Camilla Park
- Cardinal Creek
- Carilion
- Carolina Heights
- Casa Loma
- Castlebrook
- Cedar Lane Gardens
- Cedar Vale
- Chandler Ridge
- Chanticleer
- Chelsea Townes at Hollingsworth
- Cherokee Forest
- Cherokee Park
- Cherrydale
- Chestnut Hills
- Chestnut Ridge
- Cimmaron
- City Lights
- City Place
- City View
- Cityhomes at McBee Station
- Claremont – Greenville
- Cleveland Forest
- Cliffs Valley
- Coachman Estates
- Cochran Heights
- College Heights
- Collins Creek
- Colonia
- Colonial Acres
- Copper Run
- Cottage Hill
- Cottages at Shoally Ridge
- Court Ridge
- Court St Condos
- Court View
- Creekside Place
- Creekside Villas
- Creekstone Villas
- Croftstone
- Croftstone Acres
- Cureton Place
- Cypress Run
- Davenport Condo
- Del Norte
- Dellwood
- Dove Tree
- Downtown
- Dukeland Park
- Dunean
- Dunean Mills
- East Highland Estates
- East Park Historic
- Eastover
- Edgewood Estates
- Emerald Commons
- Englewood Estates
- Fair Heights
- Fairfield Place
- Fairway View
- Falls Walk
- Faris Ridge
- Farmington Acre
- Fern Hollow
- Fieldstone
- Forest Ridge
- Forrester Cove
- Forrester Creek
- Forrester Heights
- Forrester View
- Forrester Woods
- Foxcroft Townes
- Franklin Heights
- Fresh Meadow Farms
- Furman Place
- Gibson Crossing
- Glen Garry
- Glendale
- Glendale Heights
- Glenlea
- Glenn Farms
- Gower Estates
- Gray Fox Run
- Green Creek
- Green Hills
- Green Valley
- Greenville Country Club
- Grove Park
- Half Mile Lake
- Hamilton Townes at Verdae
- Hampton Grove at Green Valley
- Hampton Townes
- Hampton-Pinckney Historic
- Harbor Town
- Harrington
- Hartness
- Havenhill
- Hawkins Glen
- Hawthorne Lane
- Henderson Forest
- Heritage Hills
- Hickory Heights
- Hidden Lake Estates
- Hidden Lake Preserve
- Highland
- Highview Townes
- Hollingsworth Park
- Holly Ridge
- Holly View
- Hollyton
- Hudson Acres
- Hudson Pointe
- Hue on Green
- Hunters Ridge
- Huntington
- Idlewild
- Imperial Hills
- Indian Hills
- Indigo Pointe
- Inglewood
- Isaqueena Park
- Ivybrooke
- Judson
- Judson Mill
- Jupiter Townes
- Kenwood
- Kingsgate
- Lake Forest
- Lake Forest Heights
- Lake Harbor
- Lakeside Saluda
- Lakewd On The S
- Lanneau Drive Highlands
- Latimer Square
- Laurel Creek Reserve
- Laurel Heights
- Laurel Ridge
- Legacy Park
- Lexington Place
- Liberty Park
- Linkside at Bonnie Brae
- Linkside Green
- Lofts at Mills Mill
- Lynndale
- M West Terrace Homes
- Magnolia Acres
- Maple Grove
- Maplestead Farms
- Market Point Townes
- Markley Place
- Marshall Forest
- McKenna Commons
- McNeil Court
- Meadowbrooke
- Melrose
- Melrose Place
- Merrifield Park
- Meyers Park
- Micheland Place
- Miller Heights
- Miller Park
- Mills Mill
- Mills Mill Reserve
- Monaghan
- Montague
- Monte Vista
- Montebello
- Mountain Trace
- Mountainbrook
- Nicholtown
- Ninety Eight McBee
- NOMA City Terrace
- Norden On Stone
- North Main
- North Park
- Northgate Trace
- Northwood Hills
- Oak Forest
- Oak Grove Village
- Oak Knoll
- Oak Pointe
- Oakhurst Villas
- Overbrook
- Palmetto Terrace
- Paramount Park
- Paris Glen
- Paris Mt
- Paris Mt Area
- Parkdale
- Parkins Mill
- Parkins Mill Area
- Parkins Mill Village
- Parkland Townes
- Parkland Villas
- Parkside Heights
- Parkside Villas
- Parkvale
- Pebble Creek
- Pebble Lake
- Pecan Terrace
- Pelham Oaks
- Pelham Rd Area
- Pendleton West
- Pettigru Historic
- Piedmont Park
- Pinckney Townes
- Pine Forest
- Pine Hill Village
- Pinecrest at Hollingsworth
- Pinehurst at Pebble Creek
- Plainview Heights
- Plantation Greene
- Plantation on Pelham
- Pleasant Valley
- Pleasantburg Forest
- Poe Mill
- PondiCherry
- Poplar Forest
- Reedy Falls
- Reedy Springs
- Renaissance Place
- Richland at Cleveland Park
- Richland Creek at North Main
- Richmond Hills
- Ridge Park
- Ridgeland at the Park
- Ridgestone Cottages
- Riley Trace
- River Breeze
- River Mist
- River Run
- River Valley
- Riverbend Condos
- Riverdale
- Riverdale Acres
- Riverside
- Riverstone
- Riverview
- Rockview Height
- Rocky Creek Acres
- Rolling Green Village
- Roper At Pelham
- Roper Mountain Estates
- Roper Mountain Plantation
- Saluda Bluffs
- Saluda Lake
- San Souci Heights
- Sedona
- Shadow Moss
- Shady Acres
- Shamrock Acres
- Shannon Forest
- Sharon Park
- Sherwood Forest
- Shoally Ridge
- Southwood Acres
- Spaulding Farm
- Spring Forest
- Springs Station
- Stone Lake
- Stonebrook Farm
- Stratford Forest
- Stratford Point
- Summerfield
- Summersett Place
- Sunset Hills
- Swansgate
- Tanglewood
- Tanglewood Townes
- Tanner Estates
- Tanner Mill
- Taylor Oaks
- Terra Pines
- The Avant
- The Cottages at Overbrook
- The Cove at Butler Springs
- The Edge on North Main
- The Heights
- The Kitson
- The McDaniel
- The Oaks at Roper Mountain
- The Park Downtown
- The Ridges at Paris Mountain
- The Summitt at Pelham Springs
- The Townes at Pine Grove
- The Village at Chapel Green
- The Vista
- Thistledown
- Three Bridges
- Tinsley Place
- Town Park
- Townes at Cardinal Creek
- Townes at Cherrydale
- Treybern
- Twin Lake Cottages
- Twin Lakes
- Unity Village
- University Heig
- University Park
- University Place
- Vardy Vale
- Victor Monaghan
- Village@Townes
- Vista Hills
- Warrenton
- Washington Park East
- Waterstone Cottages
- Watson Orchard
- Webster Estates
- Welcome
- Wellington Green
- Westcliffe
- Western Hills
- Westview
- Wetherill Park
- White Oak Ridge
- Wildaire
- Williamsburg
- Windsor Park
- Windstone
- Woodland Hills Greenville 010
- Woodland Pointe
- Woodlands
- Woodruff Crossing, The Townes at
- Woods at Bonnie Brae
- Woodside Mill
- Woodstone Cottages
- Woodville Heights
- Wyndermere
- Yorktown Condos
Market Summary
Current real estate data for Single Family in Greenville as of Oct 30, 2025
1,225
Single Family Listed
89
Avg DOM
244
Avg $ / SqFt
$575,363
Avg List Price
Property Summary
- 203 Roper Mountain Rd Extension Greenville SC is a Single Family for sale in Greenville, SC, 29615. It is listed for $518,319 and features 5 beds, 4 baths, and has approximately 3,599 square feet of living space.The current price per square foot is $144. The average price per square foot for Single Family listings in Greenville is $244. The average listing price for Single Family in Greenville is $575,363. To schedule a showing of MLS#1558703 at 203 Roper Mountain Rd Extension in Greenville, SC, contact your Reliable Home Advisors agent at 864-525-2742.
Similar Listings Nearby
Listing courtesy of Kiersten Bell at BHHS C Dan Joyner – Midtown
© 2025 The data relating to real estate for sale on this web site comes in part from the MLS of Greenville, SC This information is deemed reliable, but not guaranteed. Neither, the MLS of Greenville, SC, nor the listing broker, nor their agents or subagents are responsible for the accuracy of information. The buyer is responsible for verifying all information. This information is provided by the MLS of Greenville, SC for use by its members and is not intended for the use for any other purpose.
© 2025 The data relating to real estate for sale on this web site comes in part from the MLS of Greenville, SC This information is deemed reliable, but not guaranteed. Neither, the MLS of Greenville, SC, nor the listing broker, nor their agents or subagents are responsible for the accuracy of information. The buyer is responsible for verifying all information. This information is provided by the MLS of Greenville, SC for use by its members and is not intended for the use for any other purpose.
203 Roper Mountain Rd Extension
Greenville, SC
