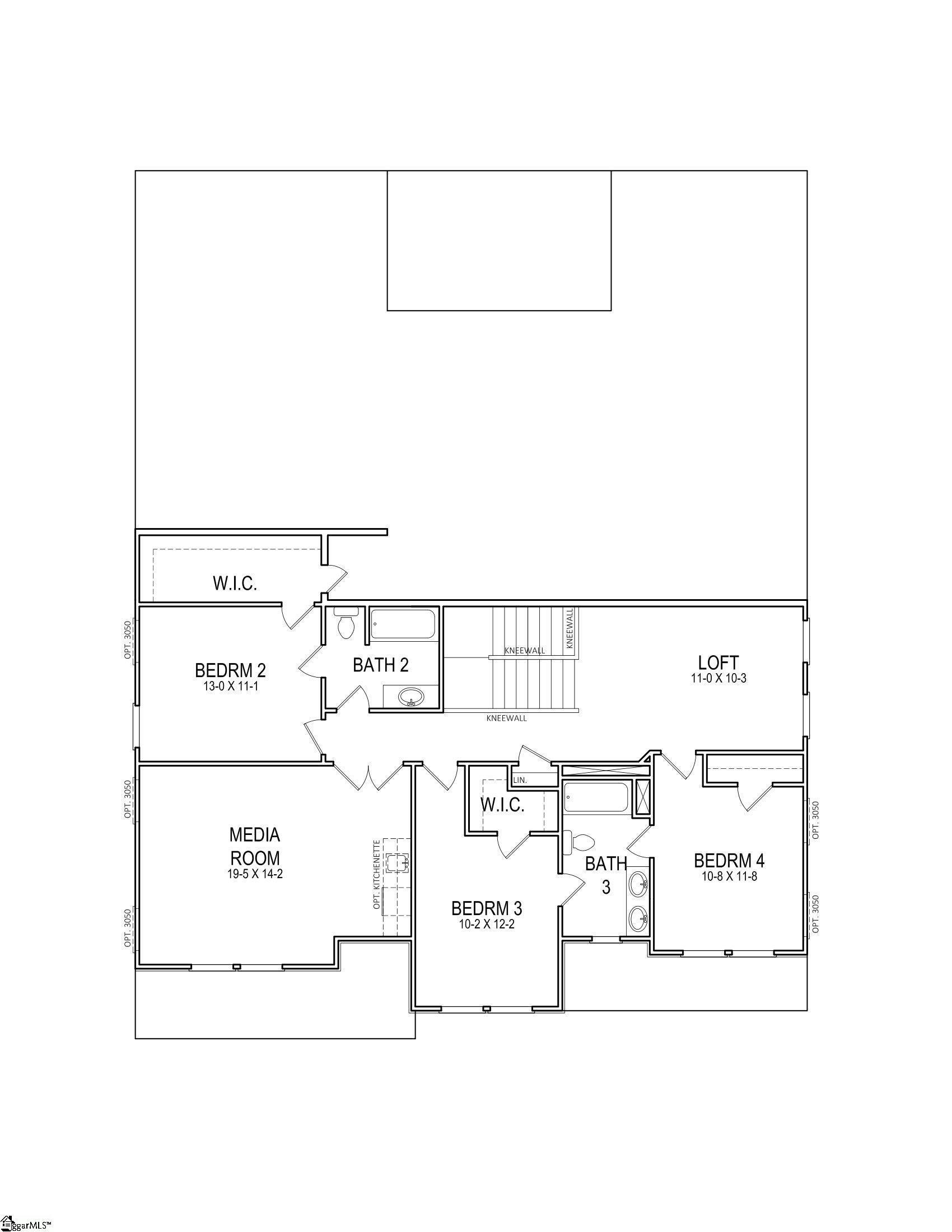
NEW ROCKFORD PLAN by TRUST HOMES TAILORED! Mostly Full Brick Home with 3 Car Side Entry and Tandem Garage sits nestled on close to half acre home-site in cul de sac of established Simpsonville community! Entryway features formal living and dining room, connecting to Chef’s Kitchen via Butler’s Pantry and Large walk-in Pantry. Kitchen includes stainless built in gas appliances, vented wall hood, quartz countertops, tile backsplash, farm sink and 42" cabinets with crown moulding! Large family room with shiplap fireplace and built in bookshelves looks out onto covered patio! Primary Suite on main floor with large full tile walk in shower, large walk in closet, dual comfort height vanities and linen closet! Mud hall with built in bench and cubbies sits across from spacious walk in laundry with sink and additional storage cabinets. Walk up the hardwood tread staircase with open wrought iron spindles to upstairs loft, following 2 bedrooms with Jack and Jill bath set up, Media room, and a third bedroom with private bath access and walk in closet! Additional features include full in ground irrigation, upgraded light and plumbing fixtures, upgraded trim package, bronze color door hardware, and video door bell/smart switch tech package with structured wiring panel! Rare opportunity for new construction in an established community close to Holly Tree Country Club!
Property Details
Price:
$849,700
MLS #:
1561934
Status:
Active
Beds:
4
Baths:
3.5
Type:
Single Family
Subdivision:
Lavender Hill
Neighborhood:
032
Listed Date:
Jun 30, 2025
Finished Sq Ft:
3,599
Lot Size:
19,166 sqft / 0.44 acres (approx)
Year Built:
2025
See this Listing
Schools
Elementary School:
Bethel
Middle School:
Hillcrest
High School:
Mauldin
Interior
Exterior
Financial
Map
Community
- Address120 Lavender Hill Court Simpsonville SC
- SubdivisionLavender Hill
- CitySimpsonville
- CountyGreenville
- Zip Code29681
Subdivisions in Simpsonville
- Adams Creek
- Adams Run
- Asheton Lakes
- Asheton Springs
- Autumn Trace
- Autumn Woods
- Avondale Heights – 032
- Baldwin Commons
- Baldwin Forest
- Baldwin Ridge
- Baywood Place
- Beechwood Hills
- Bellingham
- Bells Creek
- Bessinger
- Boxwood
- Bradberry Place
- Braxton Ridge
- Brentwood
- Briar Oak
- Bridges Crossing
- Bridgewater
- Brookfield Gardens
- Brookhaven
- Bruce Farm
- Bryson Crossing
- Bryson Meadows
- Cameron Creek
- Carriage Run
- Carrington
- Carrington Green
- Carsons Pond
- Cedar Shoals
- Chancellors Park
- Chandler Lake
- Chastain Glen at Five Forks
- Chatham Woods
- Chestnut Pond
- Chestnut Ridge
- Clark Manor
- Clear Springs
- Coachman Plantation
- Coachman Reserve
- Coachwood Forest
- Cobblestone
- Colonial Acres
- Coopers Lake
- Copper Creek
- Cottages at Harrison Bridge
- Cotton Mill Place
- Country Walk
- Coventry
- Creek Bank Commons
- Creekwood
- Crown Pointe
- Dalewood Heights
- Danbury
- Deerland Plantation
- Dunwoody Oaks
- Eastridge
- Enoree Point
- Fairview Lake
- Fairview Village
- Fieldmont
- Forest Lake
- Forest Park
- Fox Trace
- Foxdale
- Foxwood
- Garrison Grove
- Gilder Chase
- Gilder Creek Farm
- Glen Meadows
- Grandview Townes
- Grayson Park
- Greenrich Mill
- Gresham Park
- Gresham Woods
- Greythorne
- Griffin Park
- Hamptons Grant
- Harrison Cove
- Harrison Hills
- Hartridge Manor
- Harts Lane
- Hawthorne Ridge
- Heritage Creek – Simpsonville
- Heritage Crossing
- Heritage Lakes
- Heritage Point
- Heritage Village
- Highgrove Estates
- Highland Chase
- Highland Creek
- Holland Trace
- Hollington
- Holliston
- Holly Tree
- Holly Tree Plantation
- Howards Park
- Hudders Creek
- Hunters Acres
- Hunters Woods
- Ivy Glen
- Ivy Walk
- Jones Mill Crossing
- Kelsey Glen
- Kilgore Farms
- Kilgore Plantation
- Kings Crossing
- Kingsbridge
- Kingswood
- Knight\’s Bridge
- Knollcreek
- Lakeview Grove
- Lansdowne At Remington
- Laurel Grove
- Lavender Hill
- Lennox Lake
- Linden Park
- Lockeland Park
- Long Creek Plantation
- Longleaf
- Lost River
- Magnolia Glen
- Martindale
- Merrydale Village
- Morning Mist
- Mulberry Estates
- Neely Farm
- Neely Forest
- Nelsons Creek
- Oak Meadows
- Oak Park
- Orchard Farms
- Park Ridge
- Parker\’s Landing
- Parktowne Estates
- Pemberton Place
- Poinsettia
- Powderhorn
- Providence Square
- Ravenwood – 015
- Ravenwood – 031
- Remington
- Ricelan Springs
- River Ridge
- River Shoals
- River Springs
- River Trace
- River Walk
- Riverbrooke
- Rosemont
- Saddlers Ridge
- Savannah Pointe
- Shadow Creek
- Shadowood
- Shellbrook Plantation
- South Main Place
- Southpointe Cottages
- Sparrows Point
- Squires Creek
- Standing Springs Estates
- Stillwood at Bells Crossing
- Stonehaven
- Stones Throw at Hudders Creek
- Summerwalk
- Sycamore Ridge
- The Brooks
- The Cedars
- The Columns at Roper Mountain
- The Cove at Savannah Pointe
- The Landing at Savannah Pointe
- The Ravines at Creekside
- The Reserve at Asheton Lakes
- The Retreat
- The Settlement
- The Village at Adams Mill
- Townes at Brookwood
- Townes at Five Forks
- Townes at Fowler
- Townes At Woodruff Park
- Trentwood
- Tuscany Falls
- Twin Creeks
- Upland Farms
- Verdmont
- Victoria Park
- Villages at Windsor
- Villas at Carriage Hills
- Vintage Oaks
- Walnut Ridge
- Waterford at Roper Mountain
- Watermill Pond
- Waters Run
- Waterton
- Waverly Hall
- Weatherstone
- Wedgefield
- Westwood
- Windsor Creek
- Windsor Forest
- Woodcrest
- Woodcrest Hills
- Woodland Chase
- Woodruff Lake
- Woodside Mill
Market Summary
Current real estate data for Single Family in Simpsonville as of Nov 02, 2025
523
Single Family Listed
77
Avg DOM
180
Avg $ / SqFt
$476,580
Avg List Price
Property Summary
- Located in the Lavender Hill subdivision, 120 Lavender Hill Court Simpsonville SC is a Single Family for sale in Simpsonville, SC, 29681. It is listed for $849,700 and features 4 beds, 4 baths, and has approximately 3,599 square feet of living space, and was originally constructed in 2025. The current price per square foot is $236. The average price per square foot for Single Family listings in Simpsonville is $180. The average listing price for Single Family in Simpsonville is $476,580. To schedule a showing of MLS#1561934 at 120 Lavender Hill Court in Simpsonville, SC, contact your Reliable Home Advisors agent at 864-525-2742.
Similar Listings Nearby
Listing courtesy of Sheridan Burgos at TRUST/SOUTH COAST HOMES
© 2025 The data relating to real estate for sale on this web site comes in part from the MLS of Greenville, SC This information is deemed reliable, but not guaranteed. Neither, the MLS of Greenville, SC, nor the listing broker, nor their agents or subagents are responsible for the accuracy of information. The buyer is responsible for verifying all information. This information is provided by the MLS of Greenville, SC for use by its members and is not intended for the use for any other purpose.
© 2025 The data relating to real estate for sale on this web site comes in part from the MLS of Greenville, SC This information is deemed reliable, but not guaranteed. Neither, the MLS of Greenville, SC, nor the listing broker, nor their agents or subagents are responsible for the accuracy of information. The buyer is responsible for verifying all information. This information is provided by the MLS of Greenville, SC for use by its members and is not intended for the use for any other purpose.
120 Lavender Hill Court
Simpsonville, SC
