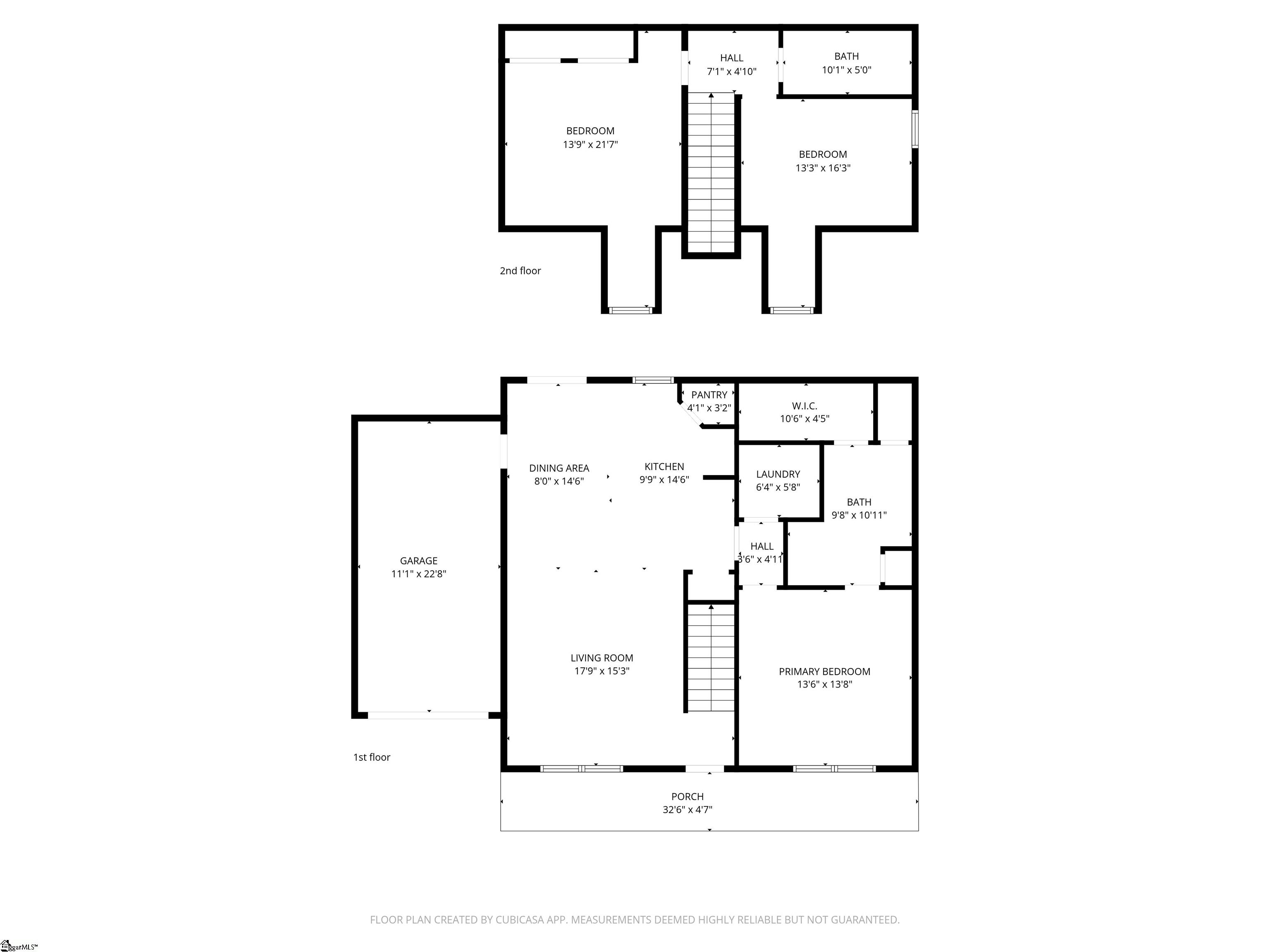
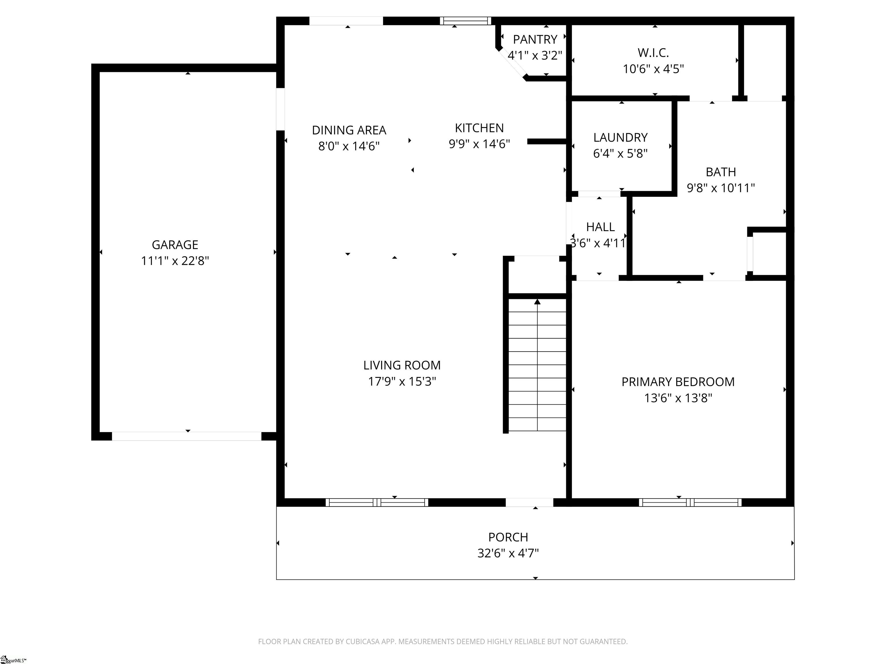
Brand new build in progress in Taylors! This upcoming home sits on a 0.35-acre lot and is currently in the framing stage, giving buyers an exceptional opportunity to customize the home to their liking. From interior finishes to design touches, there’s still plenty of flexibility to make this home truly yours. Contact the listing agent for details on customization options and timelines. With a Cape Cod–inspired exterior and a modern, functional layout planned inside, this home will offer energy-efficient systems, quality construction, and comfortable everyday living once complete. The location puts you right in the center of everything: 15 minutes to Downtown Greenville, 15 minutes to Downtown Greer, 10 minutes to Hampton Village Shopping Center (Publix, Chick-fil-A, and more), Minutes to Cherrydale for shopping and dining, Close to Pebble Creek Golf Course, 15 minutes to Walmart. If you’ve been searching for a new construction home with the ability to pick your finishes and put your style into the build—this one delivers. Reach out today for a site visit and details on the customization process.
Property Details
Price:
$375,000
MLS #:
1574912
Status:
Active
Beds:
3
Baths:
2
Type:
Single Family
Neighborhood:
010
Listed Date:
Nov 14, 2025
Finished Sq Ft:
1,599
Lot Size:
15,245 sqft / 0.35 acres (approx)
Year Built:
2025
See this Listing
Schools
Elementary School:
Paris
Middle School:
Sevier
High School:
Wade Hampton
Interior
Exterior
Financial
Map
Community
- Address1859 Reid School Road Taylors SC
- CityTaylors
- CountyGreenville
- Zip Code29687
Subdivisions in Taylors
- 100 East
- Aetna Springs
- Arbor East
- Arbor Glen
- Ashley Oaks
- Avon Park
- Beaver Brook
- Berkshire Park
- Blue Ridge Cottages
- Blue Ridge Plantation
- Bluestone Cottages
- Bradford Grove
- Brook Glenn Gardens
- Brownstone Meadows
- Bruton Woods
- Cambridge Park
- Chick Springs
- Colonial Hills
- Country View
- Dogwood Terrace
- Double Springs
- Eagles Glen
- Edwards Forest
- Edwards Station
- Enoree Heights
- Forest Acres
- Forestdale Heights
- Foxglove at Pebble Creek
- Freeman Park
- Gray Fox Run
- Hammond Pointe
- Heathwood
- Holtzclaw Estates
- Hunters Valley
- Jamestowne I
- Jamestowne II
- Lake Boling Est
- Lakeside @ Blue Ridge Plantation
- Lincoln Park
- Linkside
- Maplewood Estates
- Mare\’s Head
- Mayfair Estates
- Meadow Farms
- Meadows at Blue Ridge
- Moss Creek
- Oak Branch Estates
- Oakview
- Old Mill Estate
- Orchard Acres
- Parkview
- Peace Haven
- Pebble Creek
- Pebble Creek Village
- Pebble Valley
- Peppertree
- Pheasant Ridge
- Pine Brook
- Pleasant View
- Riders Ridge
- Rosewood Park
- Russton Place
- Sanctuary of Greenville
- Seven Oaks
- Seven Oaks at Blue Ridge Plantat
- Spring Ridge
- Stillwaters of Lake Robinson
- Stoneledges
- The Preserve at Mountain Creek
- The Townes at Eastside
- The Townes at Edwards Mill
- Walden Pond
- Waters Edge
- Waters Grove
- Wedgewood Place
- Wildaire
- Wildflower Meadows
- Willow Trace
- Windsor Oaks
Market Summary
Current real estate data for Single Family in Taylors as of Dec 13, 2025
208
Single Family Listed
80
Avg DOM
195
Avg $ / SqFt
$428,968
Avg List Price
Property Summary
- 1859 Reid School Road Taylors SC is a Single Family for sale in Taylors, SC, 29687. It is listed for $375,000 and features 3 beds, 2 baths, and has approximately 1,599 square feet of living space, and was originally constructed in 2025. The current price per square foot is $235. The average price per square foot for Single Family listings in Taylors is $195. The average listing price for Single Family in Taylors is $428,968. To schedule a showing of MLS#1574912 at 1859 Reid School Road in Taylors, SC, contact your Reliable Home Advisors agent at 864-525-2742.
Similar Listings Nearby
Listing courtesy of Michael Breisch at EXP Realty LLC
© 2025 The data relating to real estate for sale on this web site comes in part from the MLS of Greenville, SC This information is deemed reliable, but not guaranteed. Neither, the MLS of Greenville, SC, nor the listing broker, nor their agents or subagents are responsible for the accuracy of information. The buyer is responsible for verifying all information. This information is provided by the MLS of Greenville, SC for use by its members and is not intended for the use for any other purpose.
© 2025 The data relating to real estate for sale on this web site comes in part from the MLS of Greenville, SC This information is deemed reliable, but not guaranteed. Neither, the MLS of Greenville, SC, nor the listing broker, nor their agents or subagents are responsible for the accuracy of information. The buyer is responsible for verifying all information. This information is provided by the MLS of Greenville, SC for use by its members and is not intended for the use for any other purpose.
1859 Reid School Road
Taylors, SC
