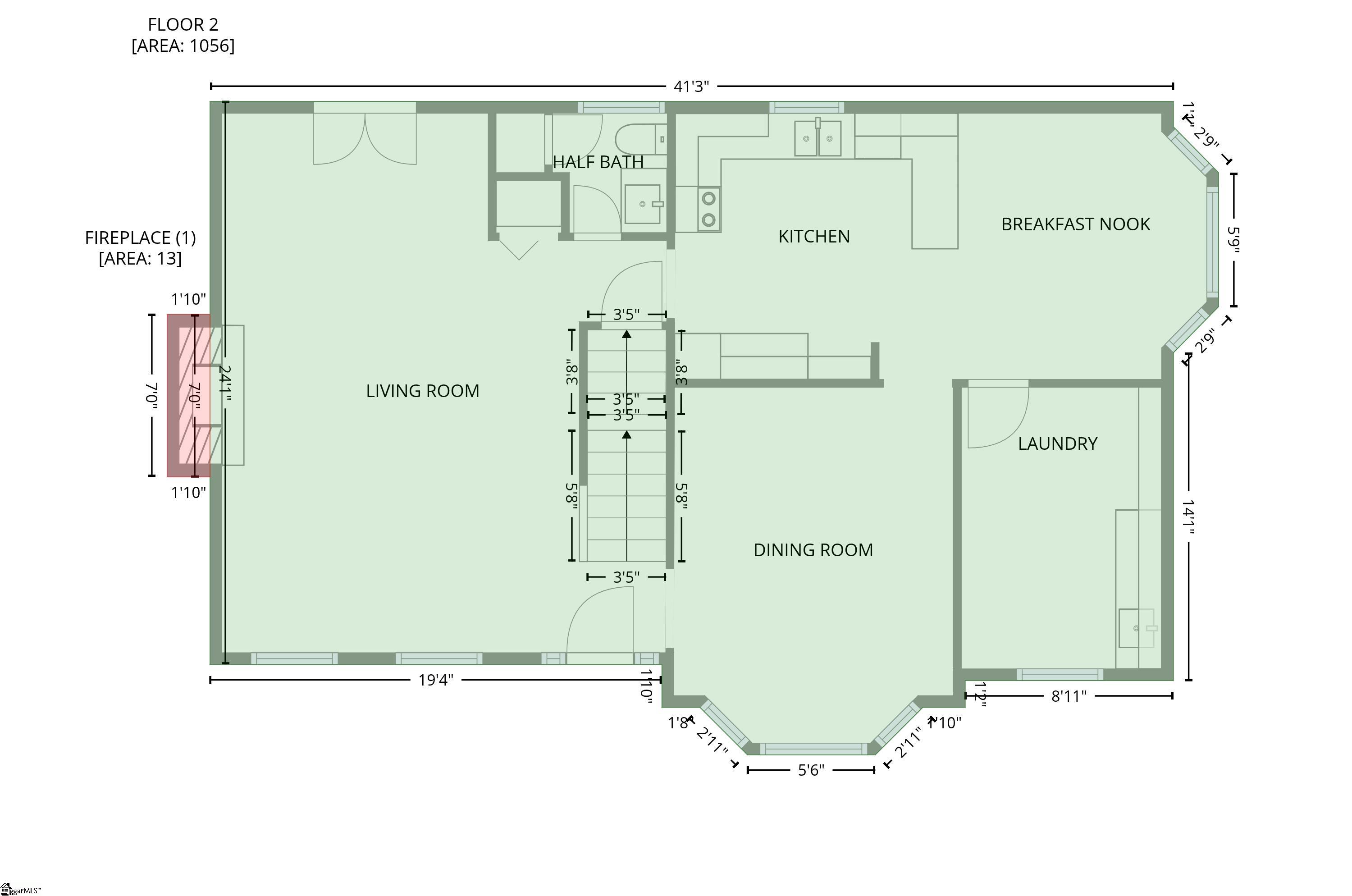
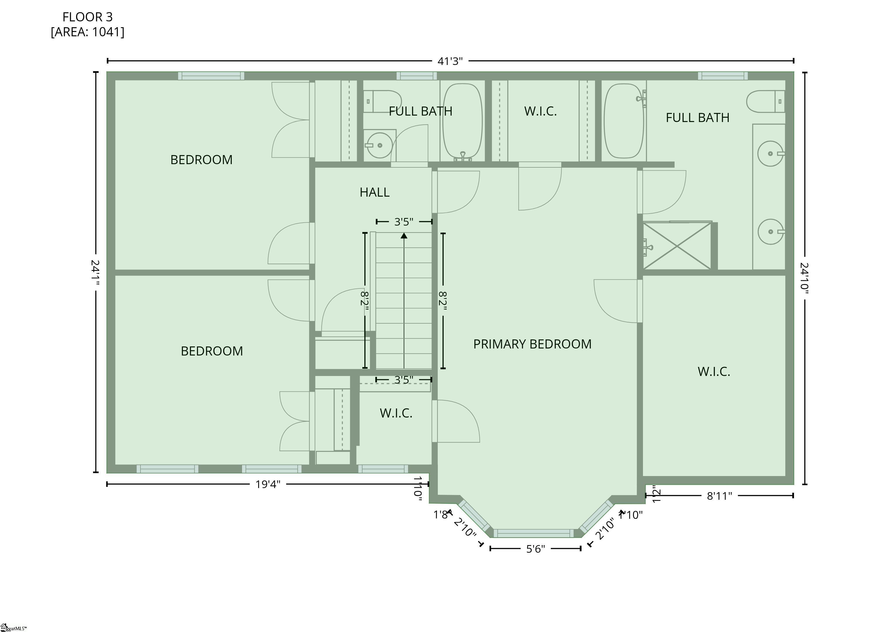
You judged and we listened! 28 Bernwood Drive is back on the market with a brand new look! This three bedroom, two full bathrooms, two half baths and  finished basement home is nestled in a quiet cul de sac of Pebble Valley. Real Hardwood floors on the main level, new carpet in the bedrooms and new cabinets and appliances in the kitchen make this home truly move in ready!!  The front porch and stairs have been freshly painted and the back porch is brand new. Come and see the all new 28 Bernwood Dr today to really appreciate the updates ready for the new homeowners.
Property Details
Price:
$399,900
MLS #:
1573201
Status:
Active
Beds:
3
Baths:
3
Type:
Single Family
Subdivision:
Pebble Valley
Neighborhood:
010
Listed Date:
Oct 25, 2025
Finished Sq Ft:
2,599
Lot Size:
16,117 sqft / 0.37 acres (approx)
See this Listing
Schools
Elementary School:
Taylors
Middle School:
Sevier
High School:
Wade Hampton
Interior
Exterior
Financial
Map
Community
- Address28 Bernwood Drive Taylors SC
- SubdivisionPebble Valley
- CityTaylors
- CountyGreenville
- Zip Code29687
Subdivisions in Taylors
- 100 East
- Aetna Springs
- Arbor East
- Arbor Glen
- Ashley Oaks
- Avon Park
- Beaver Brook
- Berkshire Park
- Blue Ridge Cottages
- Blue Ridge Plantation
- Bluestone Cottages
- Bradford Grove
- Brook Glenn Gardens
- Brownstone Meadows
- Bruton Woods
- Cambridge Park
- Chick Springs
- Colonial Hills
- Country View
- Dogwood Terrace
- Double Springs
- Eagles Glen
- Edwards Forest
- Edwards Station
- Enoree Heights
- Forest Acres
- Forestdale Heights
- Foxglove at Pebble Creek
- Freeman Park
- Gray Fox Run
- Hammond Pointe
- Heathwood
- Holtzclaw Estates
- Hunters Valley
- Jamestowne I
- Jamestowne II
- Lake Boling Est
- Lakeside @ Blue Ridge Plantation
- Lincoln Park
- Linkside
- Maplewood Estates
- Mare\’s Head
- Mayfair Estates
- Meadow Farms
- Meadows at Blue Ridge
- Moss Creek
- Oak Branch Estates
- Oakview
- Old Mill Estate
- Orchard Acres
- Parkview
- Peace Haven
- Pebble Creek
- Pebble Creek Village
- Pebble Valley
- Peppertree
- Pheasant Ridge
- Pine Brook
- Pleasant View
- Riders Ridge
- Rosewood Park
- Russton Place
- Sanctuary of Greenville
- Seven Oaks
- Seven Oaks at Blue Ridge Plantat
- Spring Ridge
- Stillwaters of Lake Robinson
- Stoneledges
- The Preserve at Mountain Creek
- The Townes at Eastside
- The Townes at Edwards Mill
- Walden Pond
- Waters Edge
- Waters Grove
- Wedgewood Place
- Wildaire
- Wildflower Meadows
- Willow Trace
- Windsor Oaks
Market Summary
Current real estate data for Single Family in Taylors as of Oct 30, 2025
244
Single Family Listed
69
Avg DOM
195
Avg $ / SqFt
$443,400
Avg List Price
Property Summary
- Located in the Pebble Valley subdivision, 28 Bernwood Drive Taylors SC is a Single Family for sale in Taylors, SC, 29687.  It is listed for $399,900 and features 3 beds, 3 baths, and has approximately 2,599 square feet of living space.The current price per square foot is $154.  The average price per square foot for Single Family listings in Taylors is $195.  The average listing price for Single Family in Taylors is $443,400.  To schedule a showing of MLS#1573201 at 28 Bernwood Drive in Taylors, SC, contact your Reliable Home Advisors agent at 864-525-2742.
Similar Listings Nearby
Listing courtesy of Shannon Potter at Keller Williams Grv Upst
© 2025 The data relating to real estate for sale on this web site comes in part from the MLS of Greenville, SC This information is deemed reliable, but not guaranteed. Neither, the MLS of Greenville, SC, nor the listing broker, nor their agents or subagents are responsible for the accuracy of information. The buyer is responsible for verifying all information. This information is provided by the MLS of Greenville, SC for use by its members and is not intended for the use for any other purpose.
© 2025 The data relating to real estate for sale on this web site comes in part from the MLS of Greenville, SC This information is deemed reliable, but not guaranteed. Neither, the MLS of Greenville, SC, nor the listing broker, nor their agents or subagents are responsible for the accuracy of information. The buyer is responsible for verifying all information. This information is provided by the MLS of Greenville, SC for use by its members and is not intended for the use for any other purpose.
28 Bernwood Drive
Taylors, SC
 
								