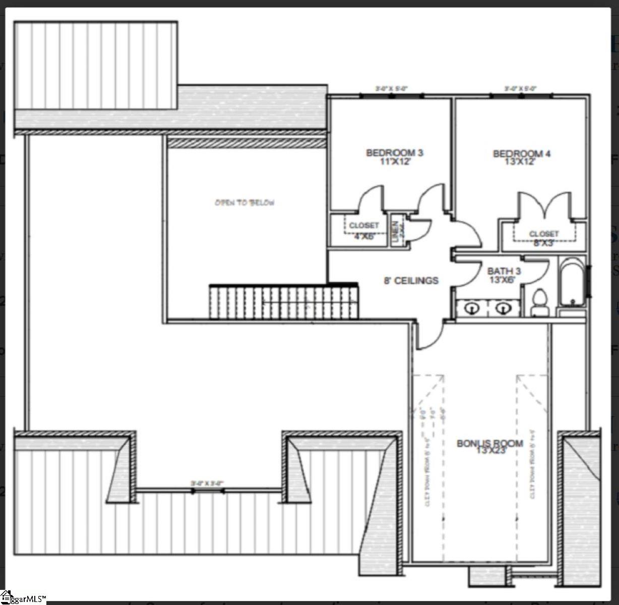
Welcome to Echo Grove, a premier new home community just 5 minutes from charming downtown Travelers Rest. Designed for comfort and ease, the Hampton Welcome to the Hampton Floorplan – Where Comfort Meets Style! Step into the thoughtfully designed Hampton, featuring a spacious open-concept layout perfect for modern living. The primary bedroom is conveniently located on the main level, offering privacy and ease with a luxurious ensuite bath. Enjoy a beautiful formal dining area, ideal for hosting dinners and special gatherings. The living room is both spacious and inviting, centered around a cozy fireplace—the perfect spot to relax and unwind. Upstairs, a versatile loft provides additional living space, great for a media room or playroom. You''ll also find two additional bedrooms, upstairs, ideal for family or guests. Back on the main level, a guest bedroom offers flexibility—use it for visitors or transform it into a home office with a mountain view. Echo Grove prioritizes easy living with homes that include universal design elements like no-step entryways and walk-in showers, ideal for all stages of life. Beyond your doorstep, embrace the beauty of nature and convenience, with grocery stores, healthcare, and retail options just minutes away. The neighborhood itself offers low-maintenance outdoor spaces for relaxing or entertaining, and nearby access to recreational trails, fitness centers, and cultural venues makes it perfect for active lifestyles. Whether you’re looking to stay connected to your community, enjoy peaceful solitude, or balance a bit of both, Echo Grove brings you the best of both worlds in an idyllic setting.
Property Details
Price:
$747,190
MLS #:
1557128
Status:
Active
Beds:
4
Baths:
3
Type:
Single Family
Subdivision:
Echo Grove
Neighborhood:
011
Listed Date:
May 12, 2025
Finished Sq Ft:
2,599
Lot Size:
21,344 sqft / 0.49 acres (approx)
Year Built:
2025
See this Listing
Schools
Elementary School:
Gateway
Middle School:
Northwest
High School:
Travelers Rest
Interior
Exterior
Financial
Map
Community
- Address3 Halowell Lane Travelers Rest SC
- SubdivisionEcho Grove
- CityTravelers Rest
- CountyGreenville
- Zip Code29690
Subdivisions in Travelers Rest
- Beaver Run
- Burban Creek Plantation
- Cherokee Valley
- Clearview Acres
- Cliffs Valley
- Coleman Heights
- Country Place
- Crescent Mountain Vineyard
- Echo Grove
- Edgebrook
- Garrenterra
- Glassy Falls
- Glastonbury Village
- Glenview Park
- Hampshire Hills
- Hawk Crest
- Hawk Pointe
- Hawkins Park
- Hillside Plantation
- Kelley Farms
- Lakeview Farms
- Look Up Forest
- Marion Meadow
- Meadow Brook
- Millers Pond
- Mountain Crest
- Park North at Pinestone
- Pleasant Valley
- Points North
- Robertson Meadows
- Spring Park
- Sunny Slopes
- The Cliffs at Mountain Park
- The Pinelands
- The Refuge
- The Ridge at Sunset
- The Rows at Pinestone
- The Summit at Cherokee Valley
- The Woodlands at Cherokee Valley
- Tubbs Mountain Estates
- Valley View
- White Oak Ridge
- Whitehawk Meadows
- Woodland Creek
Market Summary
Current real estate data for Single Family in Travelers Rest as of Oct 30, 2025
169
Single Family Listed
82
Avg DOM
252
Avg $ / SqFt
$716,232
Avg List Price
Property Summary
- Located in the Echo Grove subdivision, 3 Halowell Lane Travelers Rest SC is a Single Family for sale in Travelers Rest, SC, 29690. It is listed for $747,190 and features 4 beds, 3 baths, and has approximately 2,599 square feet of living space, and was originally constructed in 2025. The current price per square foot is $287. The average price per square foot for Single Family listings in Travelers Rest is $252. The average listing price for Single Family in Travelers Rest is $716,232. To schedule a showing of MLS#1557128 at 3 Halowell Lane in Travelers Rest, SC, contact your Reliable Home Advisors agent at 864-525-2742.
Similar Listings Nearby
Listing courtesy of Brittany Fry at Ryan Homes
© 2025 The data relating to real estate for sale on this web site comes in part from the MLS of Greenville, SC This information is deemed reliable, but not guaranteed. Neither, the MLS of Greenville, SC, nor the listing broker, nor their agents or subagents are responsible for the accuracy of information. The buyer is responsible for verifying all information. This information is provided by the MLS of Greenville, SC for use by its members and is not intended for the use for any other purpose.
© 2025 The data relating to real estate for sale on this web site comes in part from the MLS of Greenville, SC This information is deemed reliable, but not guaranteed. Neither, the MLS of Greenville, SC, nor the listing broker, nor their agents or subagents are responsible for the accuracy of information. The buyer is responsible for verifying all information. This information is provided by the MLS of Greenville, SC for use by its members and is not intended for the use for any other purpose.
3 Halowell Lane
Travelers Rest, SC
